
Vloerplannen (Floorplans)
Heldere 2D- en 3D-vloerplannen op basis van je Matterport Pro3 3D-scan. Beschikbaar als extra service na aankoop van een 3D-scan.

Waarom vloerplannen via Snap360?
Professionele plannen die je ruimte duidelijk presenteren. Ze kunnen enkel besteld worden in combinatie met een Matterport Pro3 3D-scan, zodat maatvoering en nauwkeurigheid gegarandeerd zijn.
Nauwkeurige maatvoering
Afmetingen en oppervlaktes op basis van je Pro3-scan.
Handige exports
2D (PNG/PDF) en optioneel CAD-/DXF-exports op aanvraag.
Snel geleverd
Korte doorlooptijd en duidelijke oplevering.
Voor woning & bedrijf
Van residentieel tot industrieel vastgoed.
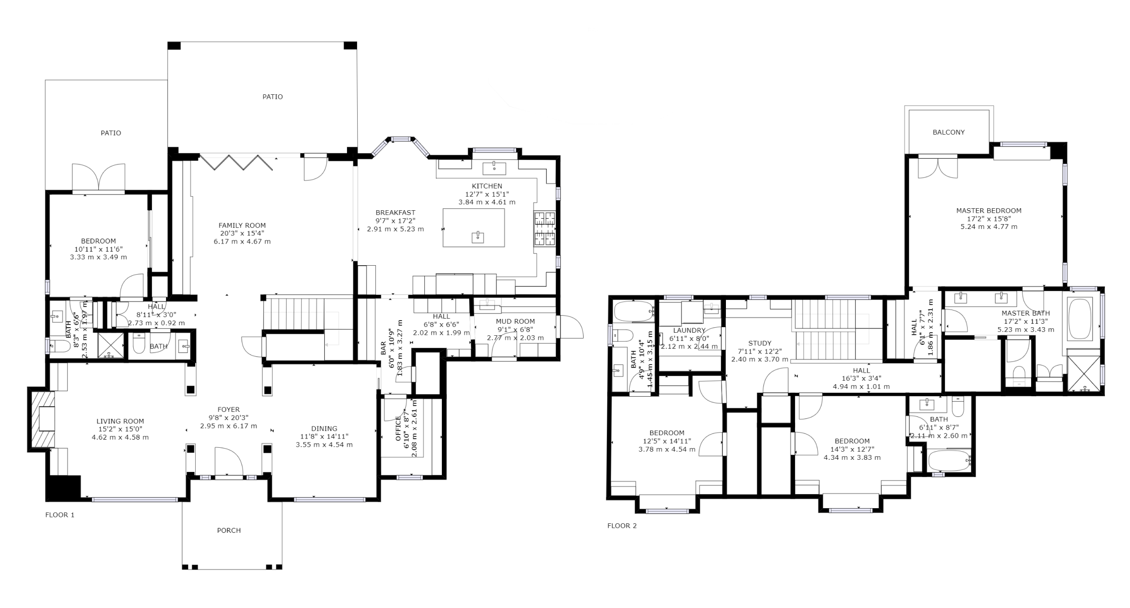
Praktijkvoorbeeld
Een voorbeeldvloerplan op basis van een Matterport Pro3 3D-scan.

Werkwijze
Van scan tot plan in drie stappen.
-
1. Scan & input
We gebruiken je Matterport Pro3 3D-scan (of plannen een scan in).
-
2. Uitwerking
Wij genereren en controleren het vloerplan, inclusief maatvoering.
-
3. Oplevering
Je krijgt het plan in afgesproken formaat (PNG/PDF, optioneel DXF/CAD).
Startprijzen vloerplannen
Indicatieve prijzen voor vloerplannen. Alleen beschikbaar als uitbreiding op een Pro3-scan. Combineerbaar met je virtuele tour.
2D Vloerplan (1 verdiep, tot 185 m²)
vanaf € 141,57 Incl. BTW
- PNG/PDF export
- Basismaten & oppervlaktes
- Kleur of zwart-wit
2D Vloerplan (meerdere verdiepen, tot 370 m²)
2D/3D Vloerplan (vanaf ± 560 m²)
vanaf € 275,15 Incl. BTW
- 2D + optioneel 3D weergave
- PNG/PDF, optioneel DXF/CAD
- Project-specifieke annotaties